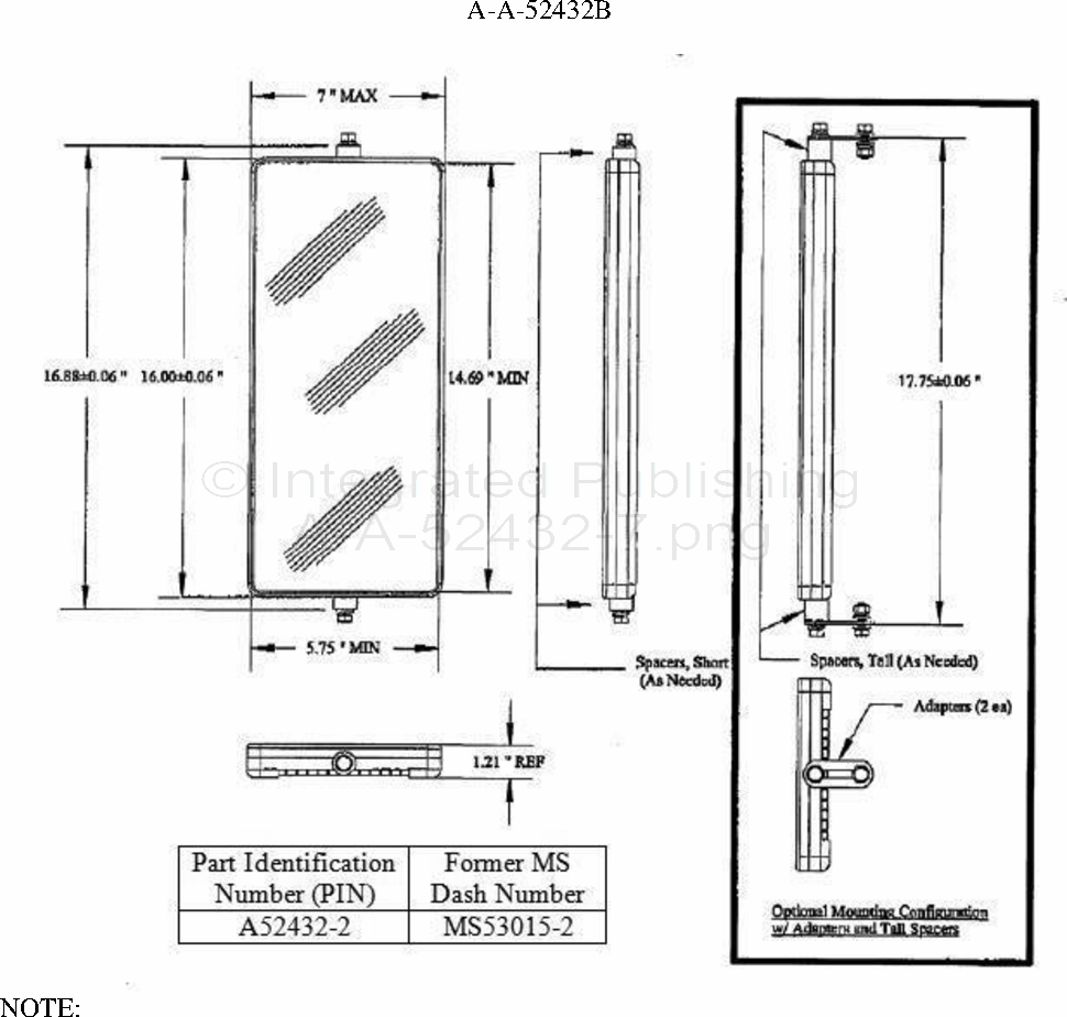
A-A-52432B

1. Mounting method shall be external bolt configuration only.
2. The upper and lower mounting holes, with threaded metallic inserts, shall be located on and with the axis of the vertical center line.
3. The threaded length of the threaded metallic insert shall be no less than .25” nor greater than .50”. In addition, the mounting hole depth shall be not less than 2.00”.
4. Orientation of the mirror lens shall be 0° ± 0.5° on the vertical axis, in accordance to the alignment of the mounting points, and 0° ± 0.5° on the horizontal axis, in accordance to the surface of the mirror back.
5. Mirror assembly fastener and spacer requirements shall be as specified in table II.
6. Mirror assembly shall include two (2) adapters as specified in figure 7.
FIGURE 2. Mirror assembly, rearview (type II).
For Parts Inquires call Parts Hangar, Inc (727) 493-0744
© Copyright 2015 Integrated Publishing, Inc.
A Service Disabled Veteran Owned Small Business