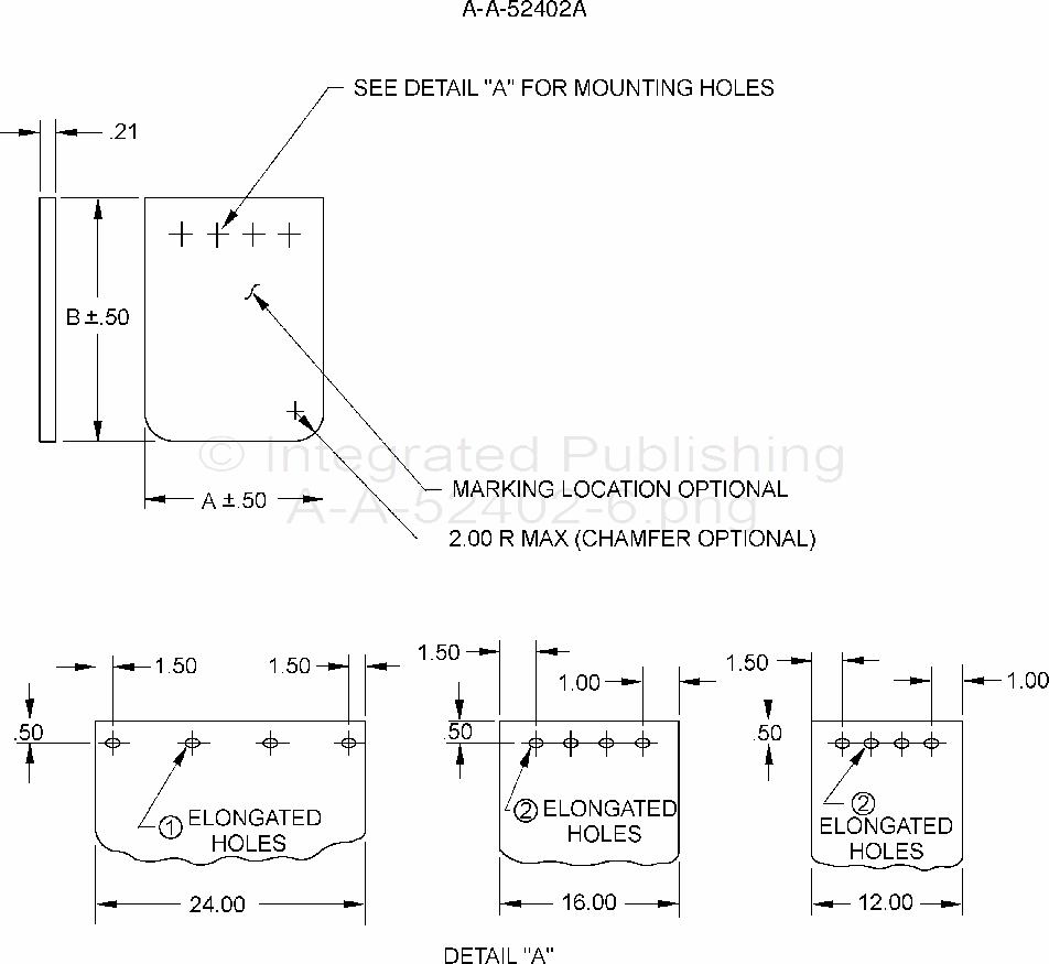
A-A-52402A

1. Four evenly spaced holes for 3/8 ± 1/16 in. diameter bolts with 200% elongation.
2. Four evenly spaced holes for 5/16 ± 1/16 in. diameter bolts with 100% elongation.
3. Dimensions are in inches.
4. Unless otherwise specified, tolerances are ± .06.
FIGURE 1. Guard, splash, wheel.
For Parts Inquires call Parts Hangar, Inc (727) 493-0744
© Copyright 2015 Integrated Publishing, Inc.
A Service Disabled Veteran Owned Small Business